How We Can Work Together
At Goff Designs, LLC, we offer a comprehensive suite of architectural and design services tailored to every project, residential or commercial, remodels, investment properties, or new constructions. No project is too small; from a single-room renovation to full-scale transformations, our attention to detail ensures every design reflects your vision. Every element, from tiles to textiles, is thoughtfully selected to create cohesive, functional, and visually striking spaces. Explore our services below to discover how we bring creativity, precision, and excellence to every project.
Design Consultation
Engaging a professional interior designer at the outset of your project is a strategic investment that saves both time and money. At Goff Designs, LLC, our expertise spans space planning, building code compliance, and a deep knowledge of premium materials. We provide meticulous guidance to prevent costly errors and ensure your project starts on a solid foundation. If full-service design isn’t required, our flexible “Day With A Designer” option offers personalized, hourly consultation, giving you professional insight when you need it most.
A Day With A Designer
For smaller projects, our exclusive “Day With A Designer” service delivers professional design expertise on a tailored, hourly basis. We offer conceptual space planning, bespoke mood boards, and curated selections of premium materials to elevate your project. Drawing from our extensive portfolio and recent successes, this service ensures every design decision is informed and refined. Perfect for modest endeavors, it allows you to access the pinnacle of design excellence without the commitment of full-service management.
Full-Service Interior Design
From concept to completion, Goff Designs, LLC manages every aspect of your project with precision and care. We handle conceptual design, material procurement, and installation oversight, transforming your vision into a refined reality. Collaborating closely with you, we adapt to diverse aesthetics, from timeless traditional to contemporary sophistication. Our structured six-phase process ensures seamless execution, creating interiors that reflect your unique style while exceeding expectations. With us, every detail is orchestrated for a home that is as functional as it is breathtaking.
Full-Service Furniture Design
When construction isn’t required, our Full-Service Furniture Design elevates your spaces with curated, exquisite furnishings. Goff Designs, LLC crafts detailed space plans and selects furniture, custom pieces, window and wall treatments, lighting, art, and accessories. We manage the entire procurement process, purchasing, receiving, and inspecting all elements. The grand reveal is carefully orchestrated, installing every piece simultaneously for a stunning, cohesive result. Our team ensures your interiors achieve a harmonious balance of style, functionality, and artistry, making every space feel thoughtfully complete.
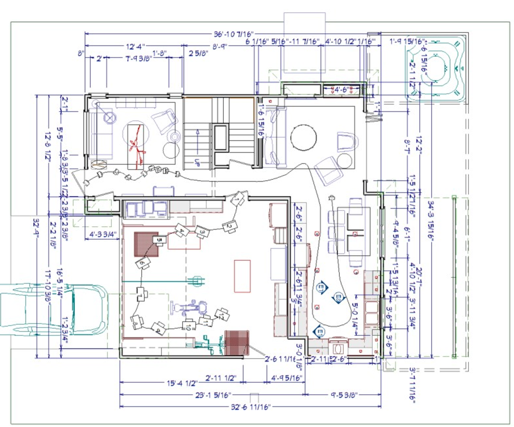
Architectural Drawings
Goff Designs, LLC provides meticulously prepared Technical Drawings (CAD Drawings) essential for project precision. These plans detail spatial layouts, plumbing, electrical specifications, and structural elements, serving as the foundation for construction accuracy. Anticipating urban regulatory requirements, we produce comprehensive floor plans to secure necessary permits. Every drawing is refined to ensure flawless execution, offering a clear roadmap for builders and contractors while maintaining design integrity. Our technical documentation bridges vision and reality, ensuring every project unfolds seamlessly from plan to completion.